Property Details

131 Greenwich Heath NW
Calgary (A2282431)

$1,950,000
6
5+1
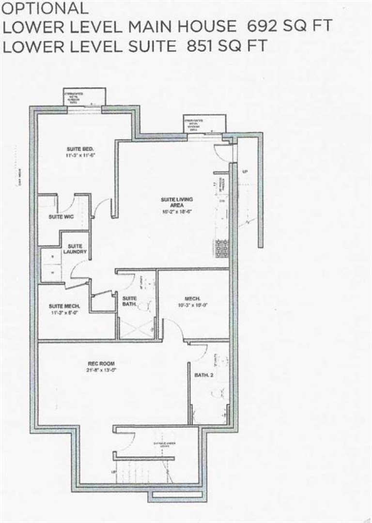
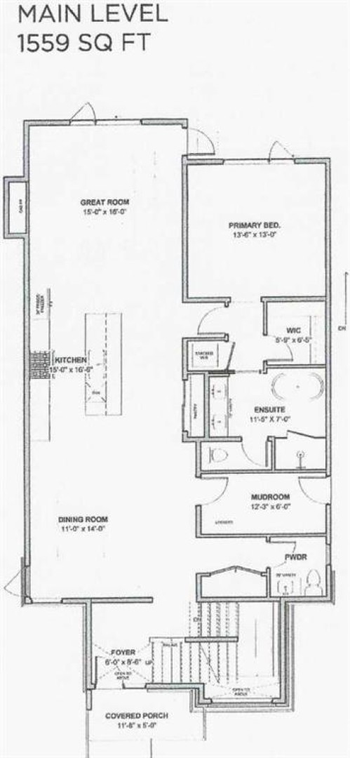
2,637 ft²
Loading Listing...

Loan Term
Interest Rate
Loan Amount
Annual Tax
Ann. Insurance

* Amounts are estimates only. Final payment amounts may vary.

Description

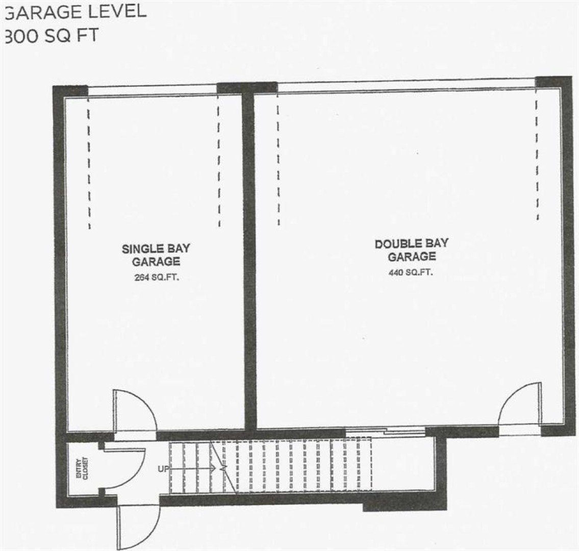
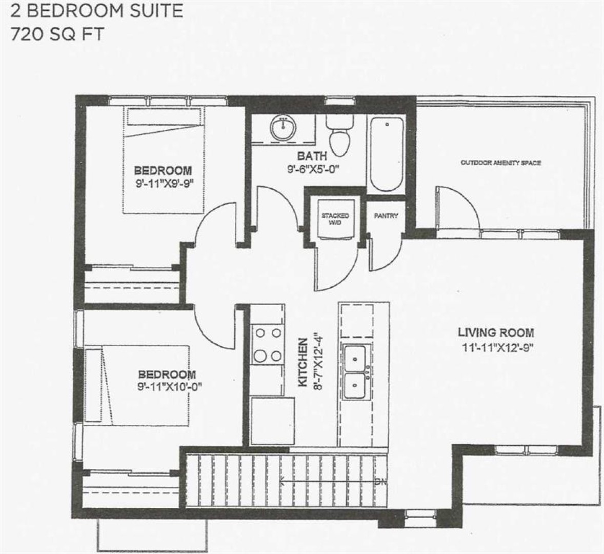
MULTI-GENERATIONAL LIVING/INCOME POTENTIAL! The Nolita II offers 2,637ft2 of well-appointed living space. The main floor features a master bedroom with ensuite, an open concept living area that includes a great room, kitchen, and living room, as well as a generous mudroom. The upper floor includes two additional bedrooms, the main bath, and a spacious bonus room. The fully developed basement of this home includes a finished recreation room and full bathroom for the main house plus a complete 1-bedroom legal suite with a separate entrance. The property also includes a detached triple garage with a 2-bedroom fully finished garden suite above. (legal Suites can be redesigned to make the home 'single-family' living.) As a Custom Concepts’ Personalized Home this home offers the perfect balance of convenience and customization, allowing you to jump-start the build process by approximately six months. The initial design, permitting, foundation, and framing are already completed, so you can begin personalizing at the rough-in stage. If you're looking for a quicker build process and a faster move-in date with the added benefit of tailoring your home to your design preferences, our Personalized Homes might be the perfect choice for you. Upper Greenwich is a distinctive community nestled on the west edge of Calgary – an easy commute to downtown with quick access to the Rocky Mountains. Upper Greenwich is a lovely blend of sophisticated urban living in natural surroundings. Walking paths, sport courts, playgrounds and abundant greenspaces can be enjoyed right outside your front door. The HOA ensures upkeep of the amenities of the community and helps bring people together with seasonal celebrations and neighborhood events. Upper Greenwich is a community that is connected, active and thriving!

Property details

Basic Info

MLS® #
A2282431
Property Type:
Residential
Subtype:
Detached
Subdivision:
Greenwood/Greenbriar
Price
$1,950,000
Sale/Lease:
For Sale
Size:
2,637 sq.ft.
Bedrooms:
6
Bathrooms:
5 full / 1 half
Year Built:
2026 (0 years old)

Building Info

New Construction:
Yes
Structure Type:
House
Building Style:
2 Storey
Garage:
Yes
Parking:
Alley Access, Concrete Driveway, Garage Door Opener, Insulated, Triple Garage Detached
Basement:
Full
Features:
Built-in Features, Closet Organizers, Double Vanity, Granite Counters, Kitchen Island, No Animal Home, No Smoking Home, Open Floorplan, Pantry, Primary Downstairs, Soaking Tub, Wired for Data
Fireplaces:
1
Inclusions:
n/a
Appliances:
Built-In Oven, Dishwasher, Electric Range, ENERGY STAR Qualified Dishwasher, ENERGY STAR Qualified Refrigerator, Gas Cooktop, Microwave, Microwave Hood Fan, Range Hood, Refrigerator, Washer/Dryer Stacked, Water Conditioner
Laundry:
Lower Level, Main Level
Exterior Features:
BBQ gas line
Patio/Porch Features:
Deck, Patio

Neighborhood Info

Nearby Amenities:
Park, Playground, Sidewalks, Street Lights, Tennis Court(s), Walking/Bike Paths

Condo/Association Info

Condo Amenities:
Park, Racquet Courts
Condo Fee 2:
$300

Lot / Land Info

Lot Size:
0.12 acres
Lot Features:
Back Lane, Back Yard, Rectangular Lot
Legal Land Desc:
33-24-2-W5
Zoning:
DC

Materials & Systems

Roof:
Asphalt Shingle
Exterior:
Composite Siding,Stone,Stucco
Floors:
Carpet, Ceramic Tile, Hardwood
Foundation:
Poured Concrete
Heating:
High Efficiency, Fireplace(s)
Cooling:
None
Amenities:
Park, Playground, Sidewalks, Street Lights, Tennis Court(s), Walking/Bike Paths

Listing Info

Possession:
Upon Completion
Days on Market:
1
Your Agent
  • Alexander Beatty

    Grassroots Realty Group Grande Prairie, AB
    780-228-4266

    Email

    Ask a question
    Share This Listing
    Related Properties